Ningbo Hongjia CNC Technology Co., Ltd. Kotiin / Tuotteet / Tavallinen kääntö-, jyrsintä- ja porauskonesarja / X6132 Universal nostopöydän jyrsintäkone

X6132 Universal nostopöydän jyrsintäkone

Tuotteen esittely ja käyttö
Tämä työstötyökalu on eräänlainen vahva metallileikkauskonetyökalu, työstötyökalulla on voimakas jäykkyys, leveä syöttönopeusalue ja se voi kantaa raskaita kuormituksen siruja. Karan kartioreikä voidaan asentaa suoraan tai erilaisten sylinterimäisten jauhelenleikkurien, pyöreiden jauhelen leikkurien, muodostusleikkurien, kasvojen jauhamisleikkurien ja muiden työkalujen, jotka sopivat koneen eri osien, kaltevuuden, uran, reikän jne. Koneiden valmistuslaitteiden, muotin, instrumentin, instrumentin, autojen, moottoripyörien ja muun teollisuuden $ $: n $ $ $ – $ $ $ $ $ $ $ $ -laitteiden käsittelemiseen.

+ Ota yhteyttä
  • X6132 Universal nostopöydän jyrsintäkone

Tuotantotiedot

Tärkeimmät rakenteelliset piirteet
1, pohja, runko, työpöytä, liukumäki, nosto- ja muut pääkomponentit ovat valettu erittäin lujasta materiaaleista ja keinotekoisesta ikääntymishoidosta, jotta voidaan varmistaa työstötyökalun pitkäaikainen stabiilisuus.
2, työstökalun pääakselin laakeri on kapeneva rullalaakeri, pääakseli omaksuu kolme tukirakenteita, pääakselin järjestelmän jäykkyys on hyvä, laakerikapasiteetti on vahva ja pääakseli omaksuu energiankulutuksen jarrutuksen, jarrutusmomentti on suuri ja pysäkki on nopea ja luotettava.
3, taulukon ± 45 ° vaakasuora kiertokulma laajentaa työstötyökalun prosessointialuetta. Työpöydän päävaihteisto ja syöttöosa omaksuvat vaihdevaihteen rakenteen, nopeuden säätelyalue on leveä ja nopeuden muutos on kätevä ja nopea.
4, taulukossa X/Y/Z -suunnassa on manuaalinen syöttö, mobiili syöte ja mobiili eteenpäin eteenpäin kolme, syöttönopeus voi täyttää erilaiset käsittelyvaatimukset; Nopea syöttö voi tehdä työkappaleen saavuttamaan prosessointipaikan nopeasti, prosessointi on kätevää ja nopeaa ja käsittelemättömän ajan lyhenemistä.
5, x, y, z kolmen suunnan ohjauspari ultra-audio-sammutuksella, tarkkuuden hiomisella ja raapimisella hoidolla, pakotetulla voitelulla, parantaa tarkkuutta pidentämään koneen käyttöikää.
6. Voitelulaite voi pakottaa pitkittäisen, vaaka-, L- ja pystysuoran lyijäruuvin ja ohjauskiskon voitelua varten, vähentää työstökalun kulumista ja varmistaa työstökalun tehokas käyttö; Samanaikaisesti jäähdytysjärjestelmä muuttaa jäähdytysnesteen virtauksen kokoa säätämällä suuttimen erilaisten prosessointitarpeiden tyydyttämiseksi.
7, työstötyökalun suunnittelu ergonomisen periaatteen mukaisesti, helppo käyttää; Operaatiopaneeli on suunniteltu figuratiivisilla symboleilla, mikä on yksinkertainen ja intuitiivinen.

Työstötyökalujen tärkeimmät tekniset parametrit

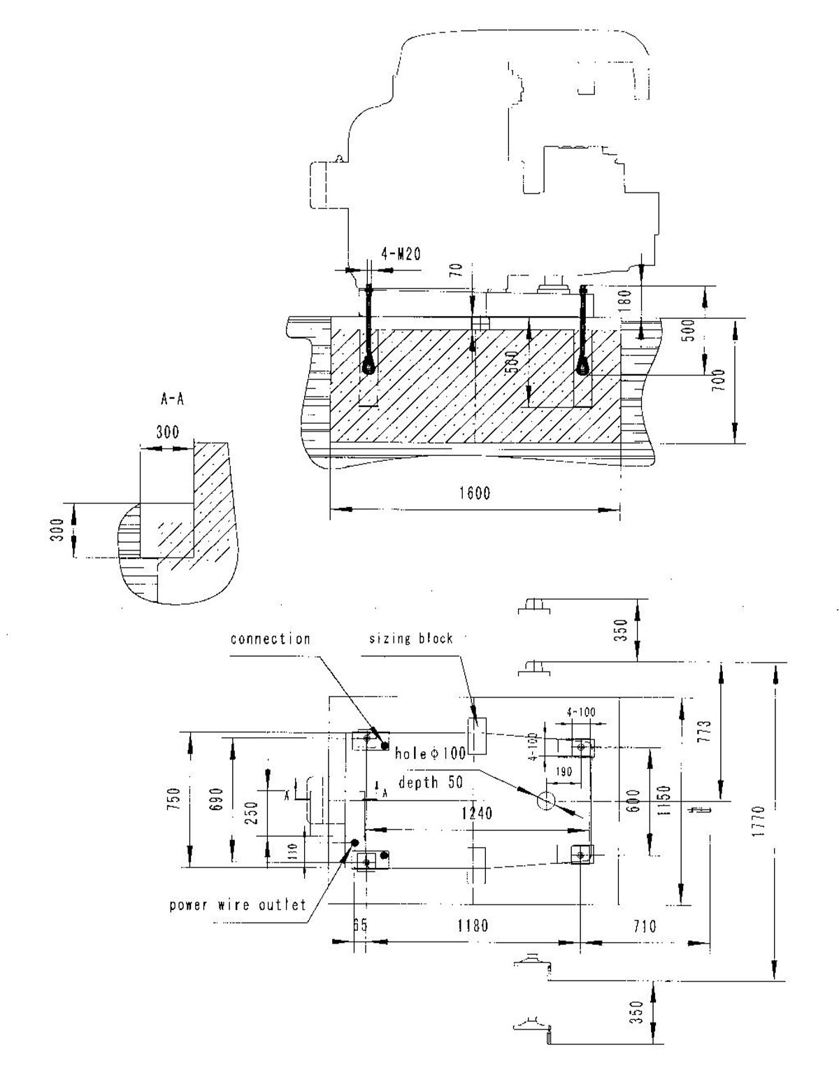
Pääakselin reikän kapenevuus 7 :24 ISO50
Etäisyys karan keskilinjasta sänkyyn pystysuoraan opaskiskoon 30-350 mm
Etäisyys karan keskilinjasta jousituspalkkiin 155 mm
Karan aukko 29 mm
Taulukon suurin kiertokulma ± 45 °
Karan nopeusalue/sarja 30 ~ 1500 rpm /18 taso
Pöydän koko 1320x320 mm
Taulukon iskun pitkittäinen/poikittainen/pystysuuntainen 700 (680/255 (240)/320 (300) mm
Taulukon syöttöalue pitkittäinen/poikittainen/pystysuuntainen Taso 18 23,5-1180/23,5-1180/8-394 mm/min
Taulukko nopeasti liikkuvan nopeuden pystysuora/vaaka/pystysuuntainen 2300/2300/770 mm/min
Työpöydän T-muotoisten lähtö- ja saapumisaikojen lukumäärä, leveys ja etäisyys 18.3.70 mm
Moottorin pääteho 7,5 kW
Syöttää moottorin tehoa 1,5 kW
Koneen mitat (l x w x h) 2294x1770x1665 mm
Verkon paino 2700/3000 kg

Pitää yhteyttä

+ SUBMIT
Ningbo Hongjia CNC Technology Co., Ltd.
Ningbo Hongjia CNC Technology Co., Ltd.
Ningbo Hongjia CNC Technology Co., Ltd. aloitti vuonna 2006 ja perustettiin vuonna 2018. Se sijaitsee Qianwan New District, Ningbo Cityssä, Zhejiangin maakunnassa, Kiinan eteläsiipissä Jangtse -joen Delta Economic Zone. Se on yritys, joka on erikoistunut CNC: n metallileikkauslaitteiden tutkimukseen, kehittämiseen, tuotantoon ja myyntiin. Kiinalaisena X6132 Universal nostopöydän jyrsintäkone supplier and custom X6132 Universal nostopöydän jyrsintäkone companyVahvan teknisen voiman ja rikkaan teollisuuskokemuksen avulla Hongjia CNC on sitoutunut tarjoamaan asiakkaille edistyneitä CNC -ratkaisuja vastaamaan eri toimialojen asiakkaiden tarpeita.
Kasvi- ja laite
  • Tehtaan ulkonäkö
  • Tehtaan ulkonäkö
  • Laitteet
  • Laitteet
  • Laitteet
  • Laitteet
  • Laitteet
Mikä on uutinen
Teollisuustieto

X6132 Universal nostopöydän jyrsintäkone , Hongjia CNC: n tuotteena on voittanut suuren maineen monilla toimialoilla voimakkaan metallin leikkauskyvyn ja laajan sovellettavuuden vuoksi. Tämä työstötyökalu ei ole vain riittävän jäykkä kestämään raskaan kuormituksen leikkaustoimenpiteitä, vaan myös varustettu laajalla syöttönopeudella prosessointiprosessin vakauden ja tehokkuuden varmistamiseksi. Sen karusreikäinen suunnittelu on joustava, ja erilaiset lieriömäiset jauhamisleikkurit, pyöreät jyrsinnän leikkurit, jauhamisleikkurien muodostaminen, kasvojen jyrsintäleikkurit jne. Voidaan asentaa suoraan tai lisävarusteisiin, tarjoamalla rajoittamattomia mahdollisuuksia monimutkaisten osien, kuten lentokoneiden, viistojen, urien, instrumenttien jne. Käsittelyyn. Teollisuus.

Hieno käsityötaito, heittäminen erinomaiseen laatuun
Hongjia CNC tietää, että korkealaatuinen korkealaatuista tulee yksityiskohtien lopullisesta harjoittamisesta. X6132: n universaalin nostopöydän jauhamyllyn pääkomponentit, kuten pohja, runko, työpöytä, liukumäki, liukumäki jne., Valitetaan kaikki voimakkaita materiaaleja ja keinotekoisesti vanhennetut, mikä eliminoi tehokkaasti materiaalin sisäisen stressin ja varmistaa työkalun työkalun pitkäaikaisen vakauden ja tarkkuuden säilyttämisen. Karan omaksuu kapenevat rullalaakerit yhdistettynä kolmen tukemisen rakenteeseen, jolla ei ole vain hyvää järjestelmän jäykkyyttä ja voimakasta kuormituskykyä, vaan se on myös varustettu energiaa kuluttavalla jarrulaitteella, jolla on suuri jarrumomentti ja nopea ja luotettava sammutus, mikä tarjoaa kiinteän takuun korkean tarkkaan prosessoinnille.

Joustavat ja vaihdettavat, laajentaen prosessointeja
Monipuolisten prosessointitarpeiden tyydyttämiseksi X6132: n universaalisen nostopöydän jauhamiskoneen työpöydän vaakasuuntainen kiertokulma voi saavuttaa ± 45 °. Tämä malli laajentaa huomattavasti työstötyökalun käsittelyaluetta. Samanaikaisesti työpöydän päävaihteisto ja syöttöosa omaksuvat vaihdevaihteen rakenteen, jolla on laaja nopeuden säätöalue ja kätevä ja nopea nopeus muutos, mikä tekee prosessointiprosessista joustavamman ja tehokkaamman. Syöttömoodin suhteen työstötyökalun x/y/z -ohjeissa on kolme tilaa: manuaalinen syöttö, moottoroitu syöttö ja moottoroitu nopea syöttö. Syöttönopeutta voidaan säätää joustavasti erilaisten prosessointitarpeiden mukaan. Nopea ruokintatoiminto antaa työkappaleen päästä nopeasti prosessointipaikkaan, lyhentää huomattavasti käsittelemätöntä aikaa ja parantaa kokonaisprosessoinnin tehokkuutta.

Tarkkuusvalmistus, pidennetty käyttöikä
Yksityiskohtaisen prosessoinnin kannalta X6132: n universaalisen nostopöydän jauhamiskoneen X-, Y- ja Z -opaskiskot ovat ultraäänisesti sammutettuja, tarkkuusmaa ja raapittu, ja pakkovoivointijärjestelmä ei ole vain parantanut prosessointitarkkuutta, vaan myös pidentänyt tehokkaasti työsuhteen käyttöikää. Voitelulaite voi pakottaa lyijyruuvien ja ohjauskiskojen voitelua pitkittäisissä, poikittaisissa ja pystysuunnissa, vähentämällä työkalun työkalun kulumista tehokkaasti ja varmistamalla työkalun työkalun tehokkaan ja vakaan toiminnan. Lisäksi jäähdytysjärjestelmä säätää joustavasti jäähdytysnesteen virtausta säätämällä suuttimen vastaamaan jäähdytystarpeita eri prosessointiolosuhteissa parantaen prosessoinnin laatua ja tehokkuutta edelleen.

Humanisoitu suunnittelu, yksinkertaistettu toimintaprosessi
Hongjia CNC harkitsi täysin ihmisen ja koneen vuorovaikutuksen mukavuutta suunnitellessaan X6132 Universal Nostinpöydän jauhamiskonetta. Konetyökalun yleinen suunnittelu vastaa ergonomian periaatteita, on helppo käyttää ja helppo käyttää. Ohjauspaneeli ottaa käyttöön graafisen symbolin suunnittelun, joka on intuitiivinen ja helppo ymmärtää. Jopa ensimmäistä kertaa operaattorit voivat nopeasti hallita sen, mikä vähentää huomattavasti toiminnan vaikeuksia ja parantaa työn tehokkuutta.

Älä epäröi ottaa yhteyttä, kun tarvitset meitä!